Aprobado el proyecto para una Residencia de Mayores en Lobón
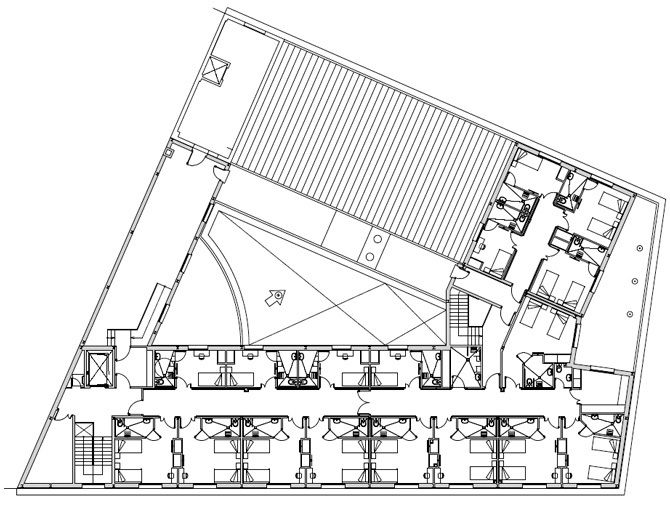
El SEPAD, Servicio Extremeño de promoción de la Autonomía y Atención a la Dependencia, organismo adscrito a la Consejería de Sanidad y Políticas Sociales de la Junta de Extremadura, ha emitido un informe favorable y de viabilidad sobre el Proyecto de Residencia de Mayores que ha presentado el Ayuntamiento de Lobón a la Junta de Extremadura.
"Comienza así un nuevo proyecto y un compromiso que cumplir con nuestros vecinos. Nos pondremos manos a la obra para sacar los recursos económicos adelante y que sea una realidad en nuestro municipio", señalan desde el Ayuntamiento el equipo de gobierno municipal.
![[Img #90999]](https://cronicasdeunpueblo.es/upload/images/10_2021/8945_244339554_2980760122242130_6650658239010431877_n.jpg)
El SEPAD, Servicio Extremeño de promoción de la Autonomía y Atención a la Dependencia, organismo adscrito a la Consejería de Sanidad y Políticas Sociales de la Junta de Extremadura, ha emitido un informe favorable y de viabilidad sobre el Proyecto de Residencia de Mayores que ha presentado el Ayuntamiento de Lobón a la Junta de Extremadura.
"Comienza así un nuevo proyecto y un compromiso que cumplir con nuestros vecinos. Nos pondremos manos a la obra para sacar los recursos económicos adelante y que sea una realidad en nuestro municipio", señalan desde el Ayuntamiento el equipo de gobierno municipal.
![[Img #90999]](https://cronicasdeunpueblo.es/upload/images/10_2021/8945_244339554_2980760122242130_6650658239010431877_n.jpg)





















